中古一戸建て
加古川市野口町長砂





この物件のお支払い例 頭金/ボーナス払い0円 頭金0円
- 物件価格
- 750万円
- 月々の支払い
(初回お支払額)
-
{{ monthlyPayment?.toLocaleString() }}円
※上記支払例の借入条件:金利{{ loanInterestRate }}%、借入総額750万円(うちボーナス払い{{ loanBonusMan }}{{ loanBonusUnit }}円)、借入期間{{ loanTerm }}年、{{ loanPaymentMethodName }}返済方式、ボーナス支払額(初回){{ bonusPayment?.toLocaleString() }}円
支払いシミュレーション
- 万円
- 万円
- %
- 万円
ボーナス払い | {{ loanTerm }}年 |
---|---|
0万円 | |
5万円 | |
10万円 | |
15万円 | |
20万円 | |
25万円 | |
30万円 | |
35万円 | |
40万円 | |
45万円 | |
50万円 |
× 閉じる
所在地・交通
所在地 | 兵庫県加古川市野口町長砂 | ||
---|---|---|---|
交通 |
山陽電鉄本線 浜の宮駅 徒歩19分 山陽電鉄本線 別府駅 徒歩29分 |
その他交通 | |
小学校校区 |
加古川市立野口南小学校 |
中学校校区 |
加古川市立中部中学校 |
※学校区は住所から自動判定したものであり、保証できる情報ではございません。正確な学校区はお問い合わせ下さい。
「人型アイコン」を地図上にドラッグすることで『Google ストリートビュー』に切り替わります。
※地図上の「対象地」は「兵庫県加古川市野口町長砂 」付近を示しています。実際の場所ではない場合がございます。詳しくはお問い合わせください。
物件概要
価格 |
750万円
|
種目 | 中古一戸建て |
---|---|---|---|
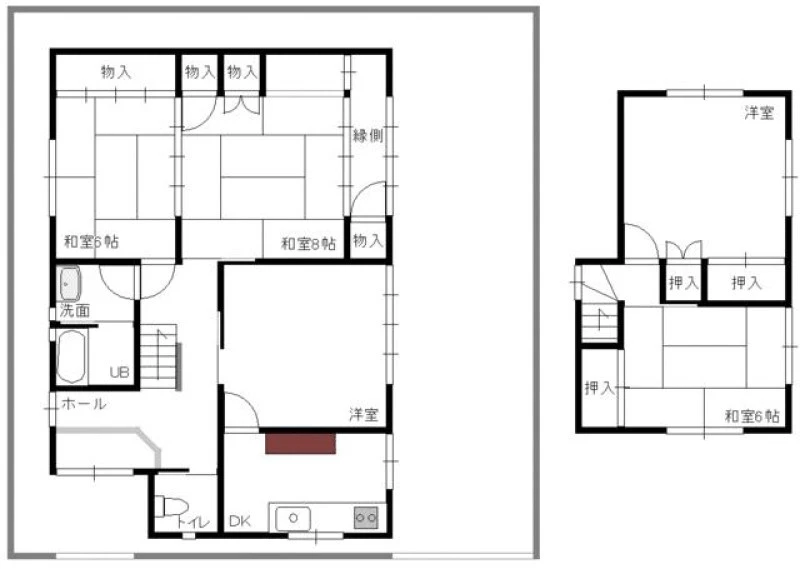
間取り | 5K | 間取り向き | |
土地面積 | 149.83㎡(公簿) | 私道面積 | |
建物面積 | 112.72㎡ | 建物構造規模 |
木造 2階建 |
バルコニー面積 | バルコニー向き | ||
築年月(竣工月) | 1983年 9月 | 駐車場 | 有 |
総戸数・総区画数 | 販売戸数・販売区画数 | ||
接道状況 |
一方 西 間口11.5m 公道 幅3.9m |
||
地目 | 宅地 | ||
建ぺい率/容積率 | 60% / 200% | 都市計画 | 市街化区域 |
土地権利 | 所有権 | 地勢 | 平坦 |
用途地域 | 第一種中高層住居専用 | 国土法 | |
現況 | 空家 | 取引態様 | 媒介 |
建築確認番号 |
取引条件等
引渡し | 相談 |
---|
その他
設備 | 都市ガス、上水道、下水道、温水洗浄便座、庭、駐車2台可 | ||
---|---|---|---|
特徴 | |||
諸条件・相談 | |||
情報登録日 | 2025年10月3日 | 情報更新予定日 | 2025年10月29日 |
物件番号 | 693483 |